共通メニュー
滋賀県 大津市南部、草津市、栗東市、守山市の不動産の事ならセンチュリー21パークホームにおまかせ下さい!
パークホーム
パークホーム
平素は格別のご高配を賜わり、誠にありがとうございます。
株式会社パークホームでは誠に勝手ながら、
年末年始休暇日を下記のとおりとさせていただきます。
期間:2025年12月28日(日)~2026年1月4日(日)
ご不便をおかけいたしますが何卒ご了承いただきますようお願い申し上げます。
※休業期間中のホームページからのお問い合わせにつきましては
2026年1月5日(月)以降に随時ご回答させて頂きます。
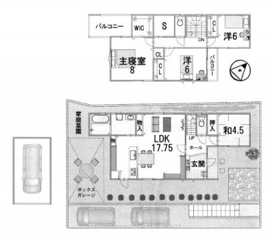
■売主の契約不適合責任免責、現状有姿取引、建物・設備の補修義務免責 ■古家付:木造瓦葺2階建、居宅、建物面積89.96m2(1階56.75m2、2階33.21m2)、昭和46年12月新築、昭和55年11月増築
関連情報
関連情報
■2020年11月リフォーム:水回り設備交換(キッチン・風呂・洗面・トイレ)・玄関引戸新調など■売主の契約不適合責任免責■隣地越境有■前面道路非道路の為、再建築時は43条2-2の申請が必要となります
関連情報
■住宅ローン関連:フラット35S (金利A) 対応可・適合証明書発行費用 220,000円 (税込) ■省エネ性能:省エネ基準適合住宅・住宅省エネルギー性能証明書発行費用16,500 円(税込) ■TVアンテナ・網戸・照明・カーテンレール等はオプションになります。■越境物:西側のブロック塀、屋根が越境
関連情報
■住宅ローン関連:フラット35S (金利A) 対応可・適合証明書発行費用 220,000円 (税込) ■省エネ性能:省エネ基準適合住宅・住宅省エネルギー性能証明書発行費用16,500 円(税込) ■TVアンテナ・網戸・照明・カーテンレール等はオプションになります。
関連情報
【2025年12月リフォーム完成】 外壁屋根塗装、屋根一部カバー工法、システムキッチン交換(浄水機能付水栓、食洗機)、洗面化粧台交換、トイレ交換、ユニットバス交換(乾燥暖房機)、リビング拡張工事、建具一部交換、全クロス張替え、洋室 フロアタイル上張り、リビング・廊下・トイレ・洗面室 クッションフロア張替え、内部塗装、給湯器交換(追い焚き付)、玄関扉シリンダー錠(上下)交換、カラーモニター付インターホン交換、ワイドスイッチ新調、コンセントプレート交換 ※司法書士売主指定
関連情報
現状有姿・公募取引■売主の契約不適合責任免責
関連情報
【2025年11月リフォーム済】 外壁一部塗装・補修・洗浄 コーキング打直し エコキュート交換 クロス全張替 畳表替 襖張替 全室照明新調 ハウスクリーニング等
関連情報
※ペット不可
関連情報
2023年01月 エコキュート交換 駐車2台可:カーポート1台分付
関連情報
■「子育て支援事業」における補助金申請には、長期優良住宅の場合、手続き費用として9万円(税別)が必要となります。■網戸、カーテン、照明、TVアンテナ等はオプションとなります。
関連情報
■町内会費500円/月■専用庭使用料:600円/月■駐車場:8500円/月(空き状況都度確認要)
関連情報
■自治会費:250円/月■2017年2月リフォーム:クロス貼替■コージェネレーションシステム採用・電気料金一括売電■駐車場:5500~18500円/月
関連情報
■総施工面積:114.27m2(ポーチ1.65m2・ベランダ4.96m2)34.56坪■別途RC造ガレージボックス付:面積:17.72m2■長期優良認定住宅・断熱等級5・一次エネルギー消費量等級6・耐震等級3・全室LED照明付・カップボード1800付・食器洗い乾燥機付・オール電化住宅・エコキュート・EVコンセント対応■埋蔵文化財包蔵地
関連情報
■本物件敷地内に側溝があり、近隣の雨水が流れている為、撤去できません ■仮測量:154.95m2(46.87坪)
関連情報
契約不適合責任免責 セットバック済
関連情報
■自治会費400円/月■駐車場:車種による■2025年8月リフォーム:設備交換(キッチン・浴室・洗面台・トイレ)・クロス張替(全室)・フローリング張替(LDK・洋室・納戸・廊下)・クッションフロア張替(洗面室・トイレ)・畳表替・襖張替
関連情報
■越境物:東側隣地の工作物の一部が越境■住宅ローン関連:フラット35S (金利A) 対応可・適合証明書発行費用 220,000円 (税込) ■省エネ性能:省エネ基準適合住宅・住宅省エネルギー性能証明書発行費用16,500 円(税込)
関連情報
■ペット飼育可(規約有)
関連情報
■駐車場:9000円(空き状況等要確認)■安心修理サポート11万別途要(キッチン、浴室、洗面台、トイレ、給湯器)■2025年12月リフォーム:キッチン新調(食洗器・浄水器付)、洗面化粧台新調、トイレ新調、全室建具新調、照明新設、ガス給湯器新調、ユニットバス新調(浴室乾燥機・追焚機能)、全室クロス貼替、全室フローリング貼替、ハウスクリーニング 等■全室エアコン設置可(うち2台は設置済)■ペット飼育可(犬猫いずれか1頭のみ)
関連情報
■2025月12月リフォーム:キッチン・ユニットバス・洗面所・トイレ・給湯器・建具・壁&天井クロス張替・フロアタイル張替・畳表替・外壁塗装
関連情報
■都市計画法34条10の立田地区地区計画区域内
関連情報
■網戸は10万円(税込)で設置可能です。■TVアンテナ申込はお客様負担となります。■公募面積での取引となります。■南西側法外道路
関連情報
■越境物:西側隣地ブロック越境 ■住宅ローン関連:フラット35S (金利A) 対応可・適合証明書発行費用 220,000円 (税込) ■省エネ性能:省エネ基準適合住宅・住宅省エネルギー性能証明書発行費用16,500 円(税込)
関連情報
■駐車場空き有(料金無)※空き状況等要確認■2022年リフォーム:キッチン・バス・トイレ・洗面・クロス貼替・畳交換・建具交換(施工月要確認)
関連情報
関連情報
■買い替え特約(令和8年2月引き渡し予定)
関連情報
■地盤20年保証 ■建物10年瑕疵保険付き
関連情報
■宅地造成工事規制区域
関連情報
■2025年8月リフォーム:間取り変更(洋室→リビング、和室→洋室約6.0帖)・フローリング、クロス全室張替・CF貼替・キッチン位置変更(カウンターキッチン) ・設備等新調(キッチン、風呂、洗面台、トイレ、給湯器・建具一部・洗濯パン・モニターホン)・ダウンライト新設・室内一部塗装・網戸一部貼替・畳表替・襖張替・洗い工事一式■駐車場:8000円/月(空き状況等要確認)■運営協力費:500円/月
関連情報
■2025年10月リフォーム:屋根&外壁塗装・バルコニー防水工事■駐車3台可(車種による)■CATV加入義務有
関連情報
■2021年リフォーム:キッチン新調・建具交換・網戸交換・全室クロス張替・和室畳表替・襖張替・フロアタイル上張(リフォーム月要確認)■引き渡し猶予有■駐車場空有:14000/月
関連情報
■【リフォーム履歴】2017年2月:フローリング貼替・壁、 天井クロス貼替 (全面) ・キッチン新調・浴室新調・トイレ新調・洗面台新調・建具新調/2025年8月:給湯器交換■町内会費:500円/月■ペット不可■売主の契約不適合責任免責■現状有姿・公簿取引■キッチン水栓 不具合あり
関連情報
■住宅ローン関連:フラット35S (金利A) 対応可・適合証明書発行費用 220,000円 (税込) ■省エネ性能:省エネ基準適合住宅・住宅省エネルギー性能証明書発行費用16,500 円(税込) ■用途地域一部:第一種中高層住居専用地域
関連情報
仮実測面積:102.1平米
関連情報
■別途要:ブロックフェンス費40万円(税込)■電柱・弓支線有■埋蔵文化財包蔵地■屋外広告物:1~3号地(第一種許可地域)・4~8号地(禁止地域)
関連情報
敷地内に都市計画道路指定有
関連情報
文化財 2階エントランス駅直結 自治会費300円/月 駐車場5000~12500園/月 24時間有人管理 フロントサービス キッズルーム カルチャールーム 学習室【リフォーム内容】2025年09月リフォーム済 システムキッチン新調、キッチンパネル新調、ユニットバス新調、洗面台新調、洗濯パン新調、トイレ新調、ダウンライト設置、クロス全て貼替、CF張替、畳表替、襖貼替、フローリング貼替、ハウスクリーニング
関連情報
ペット不可■【リフォーム内容】2025年11月リノベーション完了【新規交換】システムキッチン・ユニットバス・洗面化粧台・トイレ・建具・配管更新【新規貼替】クロス全室・床材【新規取付】電気温水器【その他】ハウスクリーニング■駐車場5000~9000円/月(空き状況要確認)■CATV使用料220円/月
関連情報
敷地内自走式駐車場:7000~8000円/月(空き状況等要確認)■自治会費:2400円(年額)■2025年10月リフォーム:全室クロス張替(天井・壁)・設備新調 (キッチン・バス・洗面台・二重サッシ・建具) ・洗美装工事(洗面所・トイレ・台所)・玄関収納・照明器具・床張替(フロアータイル・CF)・ウォシュレット便座・畳表替・塗装工事■その他費用:200円/月・インターネット(ケイオフ゜ティコム・ヤフーBB・NTT・KDDI)選択■令和7年度固定資産税 64140円
関連情報
ZEH(ネットゼロエネルギーハウス):UA値0.46■制震装置(TRCダンパー)■住宅性能評価書■太陽光7.4kw・蓄電池7.4kw搭載
関連情報
■売主の契約不適合責任免責
関連情報
住宅ローン関連:フラット35S (金利A) 対応可・適合証明書発行費用 220,000円 (税込) ■省エネ性能:省エネ基準適合住宅・住宅省エネルギー性能証明書発行費用16,500 円(税込) ■子育てグリーン住宅支援事業対応可:申請事務手数料 55,000円 (税込) ■駐車台数は車種によります
関連情報
■地盤20年保証 ■建物10年瑕疵保険付き
関連情報
関連情報
2025年9月末リフォーム:設備交換(洗面化粧台、システムキッチン、温水シャワートイレ)・クロス貼り替え(全室壁、天井)・クッションフロア張替え(1、2階トイレ、洗面脱衣場、キッチン)・畳表替え(1、2階和室)・和室一部襖、障子張替え・カメラ付インターホン交換・一部電気設備照明工事・網戸張替え(1階和室掃き出し窓、2階主寝室腰窓、2階和室小窓)・外壁一部塗装工事・駐車場入口拡張工事・ハウスクリーニング他
関連情報
2025年8月リフォーム:外構工事、間取り変更工事、システムキッチン新調、キッチンパネル新調、ユニットバス新調、洗面台新調、洗濯パン新調、トイレ新調、給湯器新調、モニターホン新調、ダウンライト設置、ポスト新調、クロス全て貼替、フロアタイル貼替、CF貼替、建具一部新調、室内一部塗装、網戸一部貼替、畳表替、襖貼替、障子貼替、洗い工事一式
関連情報
■子育てグリーン住宅支援事業の補助金申請手続きに伴い、長期優良住宅の場合9万円(税別)別途要
関連情報
■フラット35S対応可■適合証明書発行費用22万(税込)■省エネ基準適合住宅■住宅省エネルギー性能証明書発行費用16500円(税込)■子育てグリーン住宅支援事業対応可:申請事務手数料5.5万(税込)
関連情報
2025年8月リノベーション ・設備等新調(キッチン・キッチンパネル・洗面台・モニターホン) ・クロス全室張替・フロアタイル張替・CF張替・室内一部塗装・網戸一部張替・畳表替・襖張替・障子張替・洗い工事一式
関連情報
越境物:西側隣地のブロック塀・屋根が越境
関連情報
■現状有姿取引■売主の契約不適合責任免責■ペット飼育可(規約有)■引渡時期:相談可
関連情報
関連情報
■施設負担金66万(税込)別途要 ■文化財包蔵地 ■10号地のみ建築条件付き土地
関連情報
駐車場156台(自走式駐車場153台 来客用3台) 駐車場3500~12000円/月 コンシェルジュサービス シャトルバス付 コミュニティルーム パーティールーム(一部有料)インターネットは(株)つなぐネットコミュニケーションズ(使用料は管理費に含む) その他費用(専用庭:17.87平米)使用料540円/月
関連情報
有効宅地面積:約133.79m2(40.47坪)・道路後退:約3.46m2(1.04坪)
関連情報
■上物:木造瓦葺2階建、延床面積104.56平米、築S57.7.3 ■売主契約不適合責任免責
関連情報
■自治会費:250円/月■売主の契約不適合責任免責■駐車場:要問合せ
関連情報
■現状有姿公簿取引
関連情報
■現状有姿販売
関連情報
■売主の契約不適合責任免責■現状有姿公簿取引
関連情報
■外構費込価格■住宅設備機器修理サービス対象物件■あんしんプラチナパック15年保証12万(税込)■網戸11万(税込)で設置可(オプション)■子育てグリーン住宅支援事業■協定道路:敷地面積に含む(70.57m2)
関連情報
■外構費用別途要:200万円(税込)■ガス暖房
関連情報
■上物概要:木造瓦葺2階建、昭和60年12月築、延床面積:107.4m2(1階62.69m2・2階44.71m2)■現状有姿取引・公簿取引■売主の契約不適合責任免責■がけ条例■令和7年度固定資産税・都市計画税:66,800円
関連情報
■別途費用 ■水道加入金 ■建確 ■境界ブロックフェンス ■関電SOSホームセキュリティ最低1年間加入有(2700円税抜/月)
関連情報
住宅ローン関連:フラット35S (金利A) 対応可・適合証明書発行費用 165,000円 (税込) ■ZEH水準省エネ住宅:証明書発行費用110,000円(税込)■省エネ性能:省エネ基準適合住宅・住宅省エネルギー性能証明書発行費用16,500円(税込) ■子育てグリーン住宅支援事業対応可:申請事務手数料 55,000円 (税込)
関連情報
契約不適合責任免責
関連情報
ペット不可(小鳥・観賞魚は可)■2025年11月下旬リノベーション:設備新調(システムキッチン・ユニットバス・洗面台・温水洗浄機能付トイレ)、フローリング張替、建具新規交換、クロス張替、ガス給湯器交換、洗濯機防水パン新規交換、シーリングライト取付、ダウンライト設置、カーテンレール交換、ハウスクリーニング 他■駐車場:15000円/月(空き状況等要確認)
関連情報
■子育てグリーン住宅支援事業の補助金申請手続きに伴い、長期優良住宅の場合9万円(税別)別途要
関連情報
売主契約不適合責任免責 駐車場台数は車種による
関連情報
駐車場使用料3,000円~15,000円/月(区画による) ミニバイク・バイク置場使用料1,000円~1,500円/月 自転車置き場使用料100円~500円/月 ※空き状況確認要 インターネット使用料1,650円/月 売主契約不適合責任免責(付帯設備含む)
関連情報
■借地料3730円/月■自治会費500円/月■駐車場7800~8700円/月(車種による 空き状況要確認)■借地権設定登記有(存続期間2053年04月29日)■本物件購入時に借地料10ヶ月分の預かり負担金(38900円)が必要です■駐輪場200円/月■【リフォーム内容】2025年07月リフォーム済 設備交換:新調(洗面台・トイレ・給湯器・ガスコンロ・レンジフード・ダウンライト) 内装工事:全居室・LDK・廊下・洗面・トイレ:壁・天井クロス張替 洋室2室:カーペット張替 和室:畳表替・襖張替 洗面・トイレ:CF貼り その他工事:網戸張替・ハウスクリーニング・鍵交換
関連情報
関連情報
関連情報
■上物解体費用別途要
関連情報
■建築協定・緑化協定有■都市ガス引き込み有■【リフォーム歴】2012年:インナー窓設置/2022年:家庭用自然冷媒CO2ヒートポンプ給湯器取替/2024年:浴室取替、洗面台取替・1、2階トイレ取替・ウッドデッキ設置/2025年:キッチン取替・畳、襖新品(リフォーム月:要確認)
関連情報
■2025年9月リフォーム:インスペクション・設備点検・トイレ交換・クロス張替・ハウスクリーニング■文化財保護法■駐車台数は車種によります
関連情報
■駐車場:11000円/月(空き状況等要確認)■駐輪代:200円/月■バイク駐輪代:1500円/月(サイズ制限有)
関連情報
■ガス:前面道路配管有、敷地内引込無し■現況渡し
関連情報
■2025年11月下旬リフォーム:設備交換(キッチン・ユニットバス・洗面化粧台・温水洗浄機能付きトイレ)・壁、天井クロス張替・フローリング仕上げ・防蟻工事・残置物処分・外壁、屋根塗装・駐車場拡張・庭木伐採、伐根・砕石敷き込み■敷地の南東側一部が土砂災害警戒区域に指定■告知事項有
関連情報
■2025年8月リフォーム:ダウンライト新設・クロス全て貼替・フロアタイル貼替・CF 貼替・室内一部塗装・網戸一部貼替・洗い工事一式
関連情報
自治会費:500円/月 【リフォーム内容】 2020年10月 クロス張替え(玄関ホール、廊下一部、LDK)、カーペット張替(洋室)、畳表替 自転車200円/月 125CCまでのバイク500円/月 125CC以上のバイク1000円/月 駐車場4900~7000円/月(空き状況要確認 車種による) 売主契約不適合責任免責(付帯設備含む)
関連情報
関連情報
■CATV使用料:300円/月■ペット飼育可(規約有)■駐車場空き状況等要確認
関連情報
■管理棟管理費3100円/月・管理棟修繕積立金1800円/月■水道基本料2,670円・給湯基本料2,100円■暖房費2,150円(11月~4月)※ガス調整費1(給湯系)・ガス調整費2(暖房系)3月~8月■駐車場:先着順・無料(車庫証明の発行は不可)
関連情報
2025年5月リフォーム:洗面台新調・クロス全て貼替・フロアタイル貼替・CF 貼替・室内一部塗装・網戸一部貼替・畳表替・襖貼替・障子貼替・洗い工事一式
関連情報
■琵琶湖花火眺望可! ■スーパーやコンビニ徒歩圏内 ■室内大変丁寧にお使いです! 【リフォーム内容】 2020年10月 クロス張替え(玄関ホール、廊下一部、LDK)、カーペット張替(洋室)、畳表替 ※ペット不可 自転車200円/月 125CCまでのバイク500円/月 125CC以上のバイク1000円/月 駐車場4900~7000円/月(空き状況要確認 車種による)
関連情報
■2025年5月リフォーム ・洗面台新調・クロス全て貼替・フロアタイル貼替・CF 貼替・室内一部塗装・網戸一部貼替・畳表替・襖貼替・障子貼替・洗い工事一式
関連情報
インターネットNTT、KDDI、ケイオプティコムが利用可(戸別契約) 駐車場9500~14500円/月 駐車場200~400円/月 バイク置場1500円/月 ※売主契約不適合責任免責(付帯設備含む)
関連情報
古家付 解体更地渡し
関連情報
コンシェルジュサービス ゲストルーム シアタールーム 2階エントランス・歩道によりJR草津駅改札階直結
関連情報
外構費220万円別途要
関連情報
■掲載区画図は民民境界確定後、官民境界明示未了での図面です■現状有姿にて引き渡し・官民境界明示は行いません
関連情報
■2022年12月リノベーション ・水回り設備交換(キッチン・浴室・トイレ) ・内装リフォーム(床) ■インターネット使用料:990円/月 ■共視聴設備利用料:68円/月 ■町会費:500円/月 ■洗面台:2ボウルタイプ
関連情報
■上物有 ・木造二階建て、昭和52年2月築、 ・延床面積75.34m2 (1階43.88m2、2階31.46m2) ※解体費用含まず ■公募取引
関連情報
■駐車場:空き状況要確認 車種による ■売主契約不適合責任免責
関連情報
■2023年10月:パロマエコ給湯器新調
関連情報
■2025年7月リフォーム:モニターホン新調・ポスト新調・クロス全て貼替・フロアタイル貼替・CF 貼替・建具一部新調・室内一部塗装・網戸一部貼替・畳表替・襖貼替・畳表替・襖貼替・障子貼替・洗い工事一式■2008年増築 未登記部分有:1階洗面部分(面積不明)
関連情報
原則再建築不可 契約不適合責任免責 国分二丁目テレビ共同受信施設組合あり、 加入する為には加入金15000円、年会費2000円が必要です。 2025年8月修繕履歴:1階和室畳の表替えと襖張替、キッチンのCF張替、2階和室3帖の障子張替、網戸張替
関連情報